Situé Allée Richemont, découvrez ce bel appartement de 47 m² avec une situation géographique idéale, dans un immeuble semi-récent (2001) de 4 étages avec ascenseur à proximité immédiate du centre-ville et du Jardin des Plantes. Vous profiterez d'un quartier calme et verdoyant, tout en étant à deux pas des commerces, restaurants, transports.
Dans des parties communes soigneusement entretenues, équipé d'un ascenseur, l'appartement situé au 1ère étage comprend :
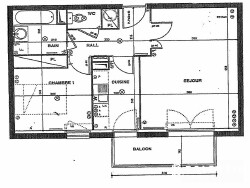
Une entrée avec placard (5,58m2) desservant : Un salon/séjour spacieux (20,22m2) avec une porte fenêtre donnant sur un balcon (5,57m2) avec vue jardin. Une cuisine indépendante lumineuse et équipée. (5,75m2) Une chambre dotée d'un grand placard de rangement (10,14m2) Une salle d'eau avec cabine de douche, meuble vasque et rangement (4,35m2) Un WC indépendant (1,17m2)
Annexe : Une place de stationnement intérieur privative.
Les atouts :Résidence et parties communes très bien entretenues. Environnement dynamique et central, au pied des commodités et des transports. Exposition : Sud-Est
Chauffage et eau chaude : électrique
Une visite s'impose !
Honoraires inclus de 5.5% TTC à la charge de l'acquéreur. Prix hors honoraires 170 000 . Dans une copropriété de 97 lots. Aucune procédure n'est en cours. Classe énergie C, Classe climat A. Date de réalisation du DPE : 21-07-2017. Les informations sur les risques auxquels ce bien est exposé sont disponibles sur le site Géorisques : georisques.gouv.fr.